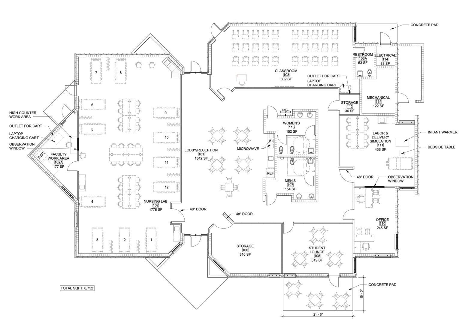
BY MARK J. CRAWFORD [email protected] Architectural plans for remodeling the health sciences building at North Florida Technical College have been approved. Greg Kelly with CRA Architects presented the plans during a March 10 school board workshop. The health sciences building houses the college’s nursing program, which is being expanded. The partnership with Santa Fe…
Support Community News
Choose the option that works for you.
Read Today
$1
Access this article immediately
Already a member? Sign in


